We offer a variety of pre-designed plans to fit your lot size, dimensions and architectural style. These pre-designed plans range from small studios to large three bedroom ADUs. Â We can build it to meet your needs.
We've built our proven designs. We know what the cities expect and we routinely get plans approved within 60-90 days of submittal to the city.Â
THE ADU HOMES
DIFFERENCE
A carriage home offers the opportunity to keep your garage while adding living space above it. Similar to a garage conversion, a studio or one bedroom home can be built on top of the existing garage depending on the size and condition of the garage and your needs.Â
It often makes sense to demolish the existing garage and build a new garage and ADU on top.Â
New construction ADUs are available in studio, one and two bedroom floor plans. Our carriage units range from 400 sf to 600 sf and are accessed by an exterior staircase.
 Construction Costs Start at $250,000


Our studio homes are the perfect option where the build-able area on the lot is limited. These detached buildings on your lot provide for open, flexible living space with a kitchen and bathroom.Â
This floor plan is a great fit for a variety of uses such as a small home, guest house, work space, pool house or recreation room.Â
Our studio plans range from 300 sf to 500 sf.Â
 Construction Costs Start at $175,000

OUR UNIQUE PROCESS
Our one bedroom plan is ideal for someone who is looking for a relatively small home but wants a defined bedroom area.Â
The footprint of this floor plan is still relatively small, so it fits well on lots that have limited area or where the homeowner desires to preserve  yard space.
Our one bedroom plans range from 400 sf to 700 sf.Â
Construction Costs Start at $185,000
OUR PRE-DESIGNED ADU HOMES


We offer several two bedroom plans. Our single story floor plan provides an open living and kitchen area with two bedrooms and one or two bathrooms. This set up is perfect for the homeowner who requires a little more space and appreciates the benefits of single level living.Â
We also have a several  of 2-story two bedroom, two bathroom floor plans. These ADUs typically  have a smaller footprint than the single story plan and work well when lot area is limited.Â
Our two bedroom plans range from 700 sf to 1,000 sf.Â
Construction costs start at $250,000
OVER 20 GREAT FLOOR PLANS OPTIONS
Our largest floor plan includes 3 bedrooms and 2.5 bathrooms. Our three-bedroom plan offers an open floor plan on the first floor with three bedrooms and two bathrooms on the second floor.Â
We also have a single-story 1,200 sf plan for homeowners with larger lots that want single-level living.
These homes are  great choices for the owner that needs more space or for the investor that wants to maximize rental income.Â
These floor plans are approximately 1,200 sf.Â
Construction costs start at $325,000


OUR PRICE /BUILD GUARANTEE
(323) 484-2433
323-484-2433

RECENT ADU PROJECTS COMPLETED
Our garage conversions allow you to convert your garage into a studio or one bedroom ADU.Â
The studio would include flexible living space with a very efficient and full kitchen and bathroom.Â
The one bedroom has a slightly larger footprint but similar floor plan with a private bedroom.Â
A garage conversion is typically 300 sf to 400 sf.Â
Construction Costs Start at $120,000 Â Â
FIND OUT EXACTLY WHAT IS POSSIBLE
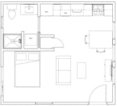
1 BEDROOM - N. Hollywood
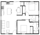
2 BEDROOM - Woodland Hills
Step 1 | Property Analysis - ADU FeasibilityÂ
ADU Homes is a one stop shop for anyone interested in having an ADU built on their property. Our fixed, all-inclusive pricing model and our completion date promise let you know exactly how much your new ADU will cost and when it will be finished.Â
From design and plan check to permitting and construction, we take care of everything. No headaches, no surprises.Â
What's Included in your Free Property Analysis?
Feasibility Analysis of your property including size of ADU that can be built on your property based on your lot and city requirements.
3D Rendering of our recommended ADU Home layout for your actual lot!
Complete Cost Breakdown to design Permit, and Construct your desired ADU
30-45 Minute Consultation via Zoom to explain every detail of building an ADU on your property and see the actual design we recommend for your property.

Interested in Building an ADU Home on your property and don't know where to start?

No time consuming meetings with architects and contractors.Â
We Understand Your Urgency



"We talked to several ADU companies but we were impressed during your presentation showing us the 3D design layout and the clear and complete budget explanation made us choose you. We are really happy with the completed project and will do another one soon"
- John Dawson - Real Estate Investor
Very Impressed with the Work
"We were under a very tight deadline because our mother out from the mid-west and we needed to get her ADU built within a short time frame. You delivered when you said you would an we are greatful"
- Janet Darling - Home OwnerÂ
They Completed on TimeÂ
"I had several bad experiences with plan check approvals and delays after hiring a designer only later to find out the final ADU design was going to cost 40% more that the designer originally estimated. Once we gave the project to you, we were able to offer alternatives and accelerate the process. Thanks for taking over and being so professional"
- Jim Sanderson - Home Owner
Relieved I Chose ADU Homes








We Guarantee Completion Time and Construction Costs!




FIND OUT EXACTLY WHAT IS POSSIBLE
       ALL INCLUSIVE PRICING
Our ADU homes range in size from a 300 sq. ft. garage conversion studio to a 1,200 sq.ft.. three-bedroom home. Our quoted pricing include all design, plan check and permit related fees, site work and home construction costs. Prices start as low as $120,000 for a stylish contemporary garage conversion.
       SIMPLIFIED PROCESS
We simplify the entire design, construction and decision-making process for homeowners like you. You will choose the exact design.Â
We will give you the estimated costs up front with no extras after construction has started. We will keep the construction schedule on track from the start to the end. We are the one stop shop for getting your ADU built on time and on budget, guaranteed.Â
No cost overrun surprises during construction. No frustrating delays. That’s our promise.
        MASSIVE TIME SAVINGS
Our design and construction approach significantly reduces the total time for a homeowner to have an ADU built on their property. From initial engagement to a completed ADU, our typical time frame is approximately 6-8 months. In the case of a garage conversion, we could finish in as short as 3 months.
      TRUE PEACE OF MIND
Our clients have the benefit of avoiding the pressure and frustration that many homeowners experience when dealing with construction. Finding and hiring consultants and contractors, time consuming research and laboring over design decisions and product selection.Â
With ADU Homes, you pick a floor plan and an architectural style, we do the rest.





Step 2 | Free Online Consultation - Design CostsÂ
    Step 3 | Site Visit - Final Property Assessment
    Step 4 | Contract - Final Design/Project Timeline
FIND OUT EXACTLY WHAT IS POSSIBLE
FIND OUT EXACTLY WHAT IS POSSIBLE
FAQ
FIND OUT EXACTLY WHAT IS POSSIBLE
FIND OUT EXACTLY WHAT IS POSSIBLE


3 Bedroom EagleRock CA

2 BED Above Garage - Orange CA
Studio  - Westchester CA
Studio - Long Beach CA



Step 5 | Plan Check Submittal/Approval Process
    Step 6 | Complete Build - Finishes & Furnishing
- Our Price Guarantee -Â
Other ADU companies have to contract out the design, the construction or both and they cannot offer the price accuracy we can.
Once you finalize your design and the plans are approved the price it is locked in. Everything including; design, plan check and permitting, site work and construction. That's our promise and your peace of mind.Â
We include every cost up front so you know what the total costs are to get your ADU completed. We can offer a price guarantee that others can't because all of the work managed  in house.Â
- Our Build Guarantee -
Our build guarantee is simple. If we don't build your ADU home on time, we give you $5000 credit for your appliances.Â
We guarantee we will build your ADU Home on time. We can make this promise because our streamlined approach, our experience and our singular focus on ADU homes. Â We don't have the delays other less experienced less focused ADU companies companies do.Â
We can get your ADU built faster because we manage the entire process from design to construction. We are your one stop shop for your ADU. Â
RECENT Testimonials from ADU Clients
($497 Value included Free for a limited time)
($497 Value included Free for a limited time)
($497 Value included Free for a limited time)
($497 Value included Free for a limited time)
($497 Value included Free for a limited time)
($497 Value included Free for a limited time)
We analyze your property location using our sophisticated analysis tools to determine if your lot can accommodate an ADU and which one of our pre-designed floor plans will work best based on your requirements.Â
If an ADU is possible, we will create a 3D representation for you to get a clear picture of how it will fit your needs. We then create a preliminary budget and project timeline to discuss with you.
We schedule your consultation via Zoom to show you which of our ADU designs we recommend based upon your specific property and your goals. Â We will share the initial timelines for each stage of the project and provide a very realistic expectation for completion.Â
Any customization you need can be discussed and if you like what you see we can provide a preliminary proposal within 1-2 days.
After our initial consultation we can schedule a site visit  to assess the property in person and to confirm our original site assumptions and gather more information as needed. Based on our site visit and any additional client input, we can update the final proposal.Â
After the site visit is completed, we write up the final proposal for your review. After the proposal is signed, our design team will start work on your ADU plans. Our Price and Build guarantee will be included to ensure you have peace of mind and confidence you will get exactly what you expect. At that point you will have access to our mobile app to keep you updated throughout the entire design, permitting and construction process.Â
Permit approval with the city is next. We typically get your permit approved within 60 to 90 days which is much faster than industry standard. We get it done much faster than other companies because our ADU design plans have been approved many times before.Â
This is one of the reasons why we can provide an accurate build time guarantee and price guarantee others can't.
Once your ADU plans are approved by the city, you can sign the construction contract that details the guaranteed construction cost and construction timeline and we start building your ADU. Because of our streamlined in-house approach we can typically build your new ADU in 3 to 5 months depending on the property and the ADU plan type.Â
On average we are 30% faster than other ADU companies because of our streamlined design and construction process.
FIND OUT EXACTLY WHAT IS POSSIBLE
($497 Value included Free for a limited time)
WHY BUILD AN ADU HOME?
Individual or Couple Starting Out Â
A new ADU can be the perfect way for a single person or couple to build a life and home equity.Â
An ADU can provide an opportunity to build a nest egg for the future.
Increase Property ValueÂ
Elderly Parent Care
An ADU can be among the best ways to increase the value of a property.Â
Whether you need additional income, pay off mortgage faster or want to add value to an income property, an ADU can be a great investment.
Your new ADU can give an elderly parent to live close by.
Empower you to bring them closer to you while maintaining privacy and independence.
Owning a ADU, in-law unit or granny flat can be a significant source for additional income that can help pay off your mortgage. Building an ADU to utilized yard space that is not being used can provide appreciation of your home.
Guest House or Airbnb Rental
ADU home can be a perfect guest house to accommodate friends while they are in town. Make good use of empty space on large properties.Â
In some cities an ADU home can be used as an Air BnB when you want to.Â
Multi-Generation Living
Some families like to stay closer together. An ADU is a perfect fit.
An ADU can be the multi-generational living opportunity for your family.Â
Live close by while still having a separate and private living space on the same property.
An ADU designed to accommodate your future needs can empower homeowners to age comfortably in place.Â
By freeing up one of the homes on the property to rent out the other one can be used for retirement income.
Age in Place - Prep for Retirement
ADU Homes can build one of the following types of ADUs for you:
Garage Conversion ADU: This includes redesigning an existing garage into a fully functional living space including sleeping area, kitchen and bathroom and more.Â
Detached ADU: We can build a brand new structure behind the primary residence that includes it's own bathroom, kitchen, lighting and plumbing. Perfect for rental income or moving in a parent or family member to provide privacy and comfort of being close by.Â
Carriage Unit ADU: Carriage Units are ADUs that are built either on top of your existing garage or a complete new garage with ADU above. This is perfect for properties that don't have the available space on the property for a detached ADU or want to keep a garage for parking or storage.
What types of ADUs can be built by ADU Homes?
Q:
ADU Homes can build an ADU home in all cities within Los Angeles and Orange County CA.Â
What Cities can we build an ADU Home in California?
Q:
The answer is YES but there is some nuance to what is considered a small modification to an existing design and what is truly a custom design.
We have more than 20 different design options that clients can be choose from. Depending on what customization you want or need, it may be just a small change to an existing design is all that is needed. This can be done and often is very easily accommodated by our design team.  Â
We do also offer full custom designs from scratch, however, the pricing will be much higher than listed starting prices. 95% of the time an adjustment to an existing design works for our clients.
Does ADU Homes provide customizable design options?
Q:
A:
A:
A:
Typically 6-8 Months start to finish for a 1 to 3 bedroom ADU. The actual construction time is typically 3-5 months. Times for a garage conversion can be as quick as 3-4 months. Garage Conversions can take as little as 3-4 months.
How long does it take for you to build an ADU?
Q:
A:
Disclaimer: ADU Homes Inc. is not affiliated with Google, Facebook or any other advertising platform.
 Provide us with a little information and we will send you a complimentary property analysis report. The report will tell you:




